
с. Толмачево ул. Ромашина, д. 12 А, ввод в эксплуатацию август 2024
Район: Брянский
Улица: Ромашина, 12 А
10 500 000
Продаётся новый современный дом (200 кв.м.) 2024 года постройки на участке 9 соток
У объекту подведены все коммуникации: центральное водоснабжение, газ и электричество заведены в дом
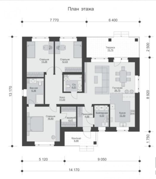
ПЛАНИРОВКА
Дом трёхкомнатный, имеет просторную совмещённую кухню-гостинную с выходом на крытую террасу
Также есть цокольный этаж свободного назначения
Продажа за наличный расчёт, ипотека
Показ в любое удобное время (по предварительной договорённости). Продажа от собственника
Кадастровый номер: 32:02:0220101:973.













